Aller au contenu

Messages recommandés

Posté(e)

Bonjour à tous, 

J'ai besoin de personnes plus compétentes que moi pour modéliser l'image ci dessous. 

Est il possible d'avoir un personne pour me créer ce plan en stl ? 

Merci par avance pour vos retours. 

 

1563961763-screenshot-20190724-114739.jp

Posté(e) (modifié)

Salut @Débutant,

 

Ton plan pique un peu les yeux 😉

Il me manque ces cotes pour finir ton fichier :

imageproxy-.jpg.6c3ffb691d5957f68ece4a92e3848c29.jpg

Ce que j'ai fait :

Capture.JPG.c110503cdf1aa1a2c537d6ab3d86f4de.JPG

Modifié (le) par Vector
Posté(e)
il y a 58 minutes, Vector a dit :

Salut @Débutant,

 

Ton plan pique un peu les yeux 😉

Il me manque ces cotes pour finir ton fichier :

imageproxy-.jpg.6c3ffb691d5957f68ece4a92e3848c29.jpg

Ce que j'ai fait :

Capture.JPG.c110503cdf1aa1a2c537d6ab3d86f4de.JPG

D'accord je vais gérer merci. 

 

Je me permettrai de te cite à nouveau pour les côtes 

Posté(e)

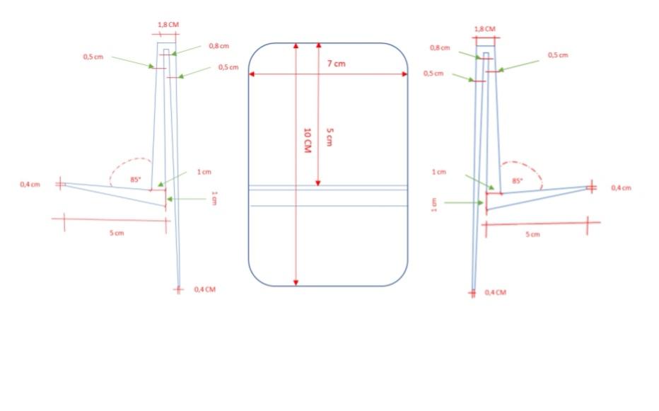
Bonjour @Débutant,

Il manque beaucoup de cotes et il y a des cotes qui me paraissent erronées.

Ce croquis n'est pas correctement réalisé, cotations en cm au lieu de mm et le PDF ne m'aide pas plus.

La longueur de 10 cm au centre, ne peut correspondre à la vue de droite ou de gauche (tes 2 vues sont identiques, une seule suffit).

En gros ta pièce doit faire environ 20 cm et pas 10cm , ou alors la cote de 1,8 cm est fausse.

Je n'ai pas non plus les cotes demandé précédemment.

A9Ruka7tr_mqi2hl_s24.thumb.jpg.79b25bff5a11722c592b1b2391daecd1.jpg

 

Si peut me renvoyer au propre ton croquis, pas de problème pour ton fichier STL.

Créer un compte ou se connecter pour commenter

Vous devez être membre afin de pouvoir déposer un commentaire

Créer un compte

Créez un compte sur notre communauté. C’est facile !

Créer un nouveau compte

Se connecter

Vous avez déjà un compte ? Connectez-vous ici.

Connectez-vous maintenant
  • Sur cette page :   0 membre est en ligne

    • Aucun utilisateur enregistré regarde cette page.
  • YouTube / Les Imprimantes 3D .fr

×
×
  • Créer...