Aller au contenu

Messages recommandés

Posté(e) (modifié)

Salut les Makers,

j'ai décidé de faire un live de la fabrication de ma nouvelle maquette. 

=> durée prévu : 1 mois (réel 2 mois 😅)

=> taille : 130x80x23 cm

=> échelle : 1/100è

ETAPE 1 - Le Projet ?

Récupération des plans et/ou de la 3D de l'architecte.

Repérage de la Zone de modélisation

1795767674_AERIEN2.1.thumb.png.dc6c165c825870a33ba81aa61c15ceb0.png

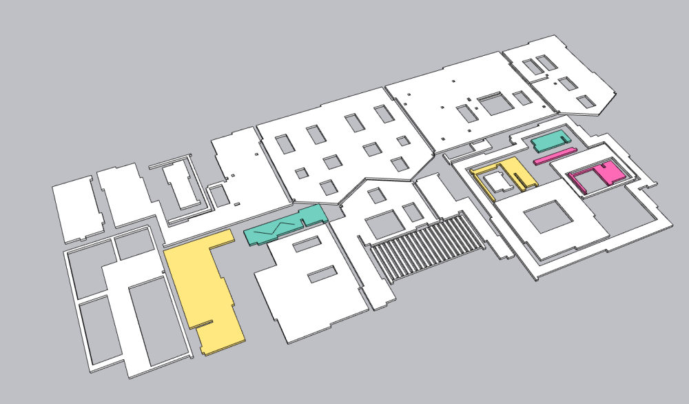
ETAPE 2 - modélisation du Projet

Modélisation simplifié de la maquette

676421995_StartMatrixMaquette.thumb.png.0edaca2de1d247c3807c34d78b6c5d68.png

 

ETAPE 3 - modélisation des bâtiments pour impression ou découpage

Modélisation du premier bâtiment pour impression 3D

MaKeT 10.png

 

 

ETAPE 4 - Impression

Un petit Lychee et j'envoie sur Saturn !

1477550158_Sanstitre8.thumb.png.0565515ccd35f75ff916a0b1a43ee52f.png

IMG_20221031_120524.thumb.jpg.b637b7eed2cbecee67b78339d9828d35.jpg

 

 

ETAPE 4 bis - découpage (plus long mais moins onéreux)

Autre méthode avec CNC:

Planche exportée en 2D pour découpage laser

1792175363_Sanstitre9.thumb.png.7da070008ab2cf9074783019da47d9b3.png

Pièces de 2mm prêtent pour l'assemblage

IMG_20221031_120446.thumb.jpg.a8b306dd47a6bedd929382b2aa085806.jpg

Colle Scotch Verte (la meilleur de toutes les colles que j'ai pu tester 😉 ), et petite pièces (emprimées en PETG ou PLA) de maintient d'angle droit pour le temps du séchage (environ 2minutes ...la meilleur de toutes les colles que j'ai pu tester 😉)

IMG_20221031_120500.thumb.jpg.3271f1818ad1d8cb9968792fb994e2ff.jpg

Montage des murs terminés

IMG_20221031_130014.thumb.jpg.0c8798aabe7b01767f3426e58a613ed2.jpg

Avec le toit en Résine (qui à courbé... je maitrise pas encore l'orientation et les support 😕 )

IMG_20221031_142345.thumb.jpg.a9d2fcd4b8a93da5c18fcccd5a418342.jpg

 

ETAPE 5 - Peinture

IMG_20221031_171937.thumb.jpg.4cdd847c7949699d8ed302a21fdfbf2f.jpgIMG_20221031_171838.thumb.jpg.e7f9856a68dd95780895c18bdd3f7137.jpg

Modifié (le) par Krl
  • J'aime 7
  • Wow 1
Posté(e)

Salut @Krl,

bonne initiative ! Juste pour être sûr d'avoir bien compris : tu modélises et reproduis la maquette de ta première photo ?

 

  • +1 1
Posté(e) (modifié)
Il y a 5 heures, Motard Geek a dit :

Tu modélises avec quoi ?

Sketchup 2021

 

Modifié (le) par Krl
  • 2 weeks later...
Posté(e)

IMG_20221111_181905.thumb.jpg.e43d56f51c201a1f8b865828843598a4.jpg

 

Maintenant que les tests ont été validés, c'est parti pour la production

Murs en PLexi

Toit en Résine

Escalier et brise soleil en PETG

 

IMG_20221112_185447.thumb.jpg.4369395f6c37f72370d51856368833b1.jpg

IMG_20221112_185515.thumb.jpg.c25bd3c0598f057d3d22c1dbddfba49a.jpg

  • J'aime 9
  • 4 weeks later...
Posté(e) (modifié)

PHASE PEINTURE

_ BATIMENTS

Peinture première Couleur Bombe Spray *FLAME*

Masquage au Tesa ou équivalent

Peinture deuxième Couleur Bombe Spray *FLAME*

Démasquage

IMG_20221210_161509.thumb.jpg.9d6dfabddfecf0dec889383a0ea84f3d.jpg

IMG_20221210_164811.thumb.jpg.84945deefa2d1f133dff6b8208cd14dc.jpg

_ TOITURES

Peinture une couche Bombe Spray *BELTON*

IMG_20221209_000811.thumb.jpg.cbd5da5af348796178a4b5cee8d0c679.jpg

_ FENÊTRES

Peinture une couche Bombe Spray *BELTON*

Laque SPray "Brillant"

IMG_20221209_002327.thumb.jpg.6c164d772b3677b1f3b56feaf6bb8254.jpg

IMG_20221211_172645.thumb.jpg.d212e80e801fdad4373063e2bb755ea9.jpg

 

_TERRAIN

Peinture une couche Bombe Spray *BELTON*

Option Poudrage "Sable"

IMG_20221209_001033.thumb.jpg.47eb77c9a9b9c01b83a4438da92b57f9.jpg

IMG_20221209_001117.thumb.jpg.22f1d6502c960a20b48e462b81995187.jpg

_ARBRES

Tressage de fil 0.3mm

Peinture MArron

Collage de "truc" de maquette de train 😄

IMG_20221209_002039.thumb.jpg.d8dc076867cbff954cc95d587c0362ac.jpgIMG_20221130_201943.thumb.jpg.28792174c4c93bea04cc7818d4a59615.jpg

Modifié (le) par Krl
  • J'aime 2
  • Wow 1
Posté(e)

Superbe rendu...

Ca me rappelle les décors que faisait mon père pour son réseau de train 😍 Si j'avais eu une imprimante 3D à cette époque 🤩

@+

JC

  • Haha 1
Posté(e)

Super les photos.

Bon courage pour les finitions.

  • Merci ! 1
Posté(e)
il y a 31 minutes, Krl a dit :

@Motard GeekEst-ce que cela vient du fait qu'il y a plus de 10mo de photos? pourtant j'ai pas de message d'erreur ..?! Il y a une réduction automatique de la taille des images puisqu'elles passent de 3Mo à 300Ko au moment de l'upload ou de la publication

Bizarre, y'a un message d'erreur normalement si l'extension et/ou le poids ne vont pas 🤔

  • Confus 1
Posté(e)

_ ESCALIERS

IMG_20221214_192220.thumb.jpg.34190455b1e989757c56cf059937b683.jpg

 

PHASE ECLAIRAGE

_ ECLAIRAGE

LED 3.0V Couleur 3000K *type dôme (j'ai oublié le nom)*

Fil de Cuivre 1.5mm (qui me reste du chantier)  Couleur R ,B ,VJ

Alimentation 3V 5A

IMG_20221216_130756.thumb.jpg.5284663eec124da0b2242c2e5b930b14.jpgIMG_20221216_130826.thumb.jpg.39fb31fb12ec3acf9cbef6c8493cb213.jpgIMG_20221219_210525.thumb.jpg.9623a89e1a8cb608909d55be083151f3.jpgIMG_20221219_210540.thumb.jpg.880b9e6baf1b427751b511f8bf6ae90c.jpgIMG_20221219_210637.thumb.jpg.0873dbd9fdb6415ba056c76e6f908319.jpg

  • J'aime 4
  • Wow 3
Posté(e)

PHASE Végétation

_ Arbres Gazons Bosquet

Papier Gazon En rouleau

Barrières En résine

Arbres En fil de fer /  Branche d'arbres / Algues sèches ramenées de la plages de l'île d'Oléron

Mousses diverses Avec plein de couleurs 

IMG_20221221_130034.thumb.jpg.62f2bf134daa764c07441ed2ab20c9b8.jpgIMG_20221221_130043.thumb.jpg.d0bab6ecb023b7a6c1365226b20c49fe.jpgIMG_20221222_184611.thumb.jpg.7a82cf2e6be42dddddcc228c49f27d54.jpgIMG_20221222_183450.thumb.jpg.62a10eaa3df6ea7ba7b0d241ed31e50d.jpgIMG_20221222_183542.thumb.jpg.e20365c3437f9ba551d816ab9b303921.jpgIMG_20221222_183520.thumb.jpg.a5670da5e504417f13c18c8a5c73888e.jpgIMG_20221222_183435.thumb.jpg.70bfa2137ec032355f310ff5552da307.jpg

  • J'aime 6
Posté(e)

Ta maquette a vraiment une super gueule.

L'étape ultime c'est d'ajouter les clampins avec leurs gosses et leurs cabots (pas nécessaire d'ajouter leurs déjections).

  • J'aime 1
  • Haha 2
  • Merci ! 1
Posté(e)

On peut rajouter les voitures garées en double file et les scooters sur les trottoirs 🤣

En tous cas bravo pour cette maquette 🤩

@+

JC

  • Wow 1
  • Haha 1
  • Merci ! 1
Posté(e)

IMG_20221223_180941.thumb.jpg.5d051a5b4d611fe44806d270929e7ab3.jpgIMG_20221223_181529.thumb.jpg.e566c88ef1ee9e2ce7323ef48ffdcf36.jpgIMG_20221223_180927.thumb.jpg.6a0e51fbd55fce31bfd6191e713d9a9b.jpgIMG_20221223_181008.thumb.jpg.fc1717c40648c952c35d7d6c54496eea.jpgIMG_20221223_180824.thumb.jpg.3a74ff95cf72941ad5b338bc70a2d99f.jpgIMG_20221223_181045.thumb.jpg.e8aa62e1626aef3df8de8602829d9f7c.jpgIMG_20221223_181114.thumb.jpg.f1af39466a64b9e82133019774c56472.jpgIMG_20221223_181501.thumb.jpg.e6a69ba4dc9ad2f65d7c552bad2ac4cd.jpgIMG_20221223_181515.thumb.jpg.64bad501c1245e0e80031ffa6dea678e.jpg

  • J'aime 3
Posté(e) (modifié)

C'est propre mais va falloir donner un peu de vie, c'est jamais aussi propre dans la réalité, la ça fait quartier résidentiel d'un park Disney 😁

Je te conseil de "salir" un peu tout ça, traces sur les routes, sur les trottoirs, murs et toits des maisons, perso j'utilise des "craies" comme celle la :

https://www.action.com/fr-fr/p/craie-pastel-van-bleiswijck-2/

Et va falloir mettre un peu de bordel, dans les jardins, salon, barbeuk, jouets de gosses...

Modifié (le) par Ironblue
  • Haha 2
  • +1 1
Posté(e)

Petite question, pourquoi les murs en plexi, ce n’est pas ce qui est le plus bon marché ?

Et sinon top les arbres avec des coloris d’automne mais il faudrait des feuilles par terre à moins que tes employés municipaux soient des mecs ultra réactifs 😂.

  • Confus 1
Posté(e) (modifié)
Il y a 18 heures, Ironblue a dit :

Je te conseil de "salir" un peu tout ça, traces sur les routes, sur les trottoirs, murs et toits des maisons, perso j'utilise des "craies" comme celle la :

Tout à fait d'accord 🙂

Sauf que là j'ai fait une belle remise donc je ne vais pas faire PLUS de zèle 😉

 

Il y a 17 heures, methylene67 a dit :

Petite question, pourquoi les murs en plexi, ce n’est pas ce qui est le plus bon marché ?

Et bien c'est de loin le rapport qualité solidité prix 😅. 1€43HT la plaque de 1.5mm en 500x300mm. 2€86HT en 3mm 😌. Si tu as d'autres tuyaux je suis preneur 😇

Le 23/12/2022 at 09:15, divers a dit :

L'étape ultime c'est d'ajouter les clampins avec leurs gosses et leurs cabot

Oui c'est la dernière étape. Ça sera pour lundi 😉

Il y a 18 heures, Ironblue a dit :

C'est propre mais va falloir donner un peu de vie, c'est jamais aussi propre dans la réalité, la ça fait quartier résidentiel d'un park Disney 

Si tu voyais ce que fait la concurrence 🤭

Je suis déjà très loin de la 🤬 qui est la norme du marché 😌

Il y a 17 heures, methylene67 a dit :

il faudrait des feuilles par terre à moins que tes employés municipaux soient des mecs ultra réactifs

Juste pour toi Promis je vais en mettre 😎

Des employés !! Pas des feuilles... 

🤨🤗😤😳🙄😲🤡🤘👀🌊🇫🇷💔⚽🥈🥐🍔🛫🏝😌

Bon en tout cas c'est la première et dernière fois que je post un live MaKeT... 

Je me retrouve déjà avec les anti nucléaires aux fesses qui veulent m'interdire les éclairages LED, le syndicat des employés de la ville qui m'accuse de surcharger le travail d'entretien des voiries et les Patriotes anti mondialistes soupçonnent un lobby pro USA encourageant la consommation de Burger, de décor en plastique et de gel hydroalcoolique... 

Bref je dépose le bilan le 1er Janvier. J'ai mon tiquet pour bosser à l'Elysée 🤑

 

Modifié (le) par Krl
  • Haha 6
Posté(e) (modifié)

609168230_MaKeTGR(33).thumb.jpg.2d67903848735e748e769829782377eb.jpg

 

1444675154_MaKeTGR(32).thumb.jpg.4536ac228779d129ee903ba4fc6a3cc7.jpg

 

27126175_MaKeTGR(31).thumb.jpg.b71a52683fa426981cf4b80474af49af.jpg

 

859192685_MaKeTGR(30).thumb.jpg.e175bbc927a01e1ae49181d1787cbf1c.jpg

 

2104665788_MaKeTGR(29).thumb.jpg.e813721725e28d30df171893fc610b7f.jpg

 

421598059_MaKeTGR(28).thumb.jpg.7f6ad52e1df64f3874ea1a698f53df9b.jpg

 

1745311165_MaKeTGR(27).thumb.jpg.9edfee21832cff73934b467e22b2b4d1.jpg

 

2081042635_MaKeTGR(26).thumb.jpg.b87a93e3f2bd8c625896361923b6b018.jpg

 

2026002407_MaKeTGR(25).thumb.jpg.dfff08cc125cc4a566718783c0ff3bb7.jpg

 

1053696478_MaKeTGR(24).thumb.jpg.8546bef44d33a33dcfbab276e8348b55.jpg

 

301031326_MaKeTGR(23).thumb.jpg.ed22540493493288c6a864e39f740107.jpg

 

689778745_MaKeTGR(22).thumb.jpg.1444bb96df574c27955253102cbddbea.jpg

 

461800557_MaKeTGR(20).thumb.jpg.4306b654a3da48e15493eeea63a3d640.jpg

 

1720866640_MaKeTGR(19).thumb.jpg.fde1e42ee9460cb1063d9adb444a61c1.jpg

 

130089398_MaKeTGR(18).thumb.jpg.7a65ce2823d9cff2346be20b08ca3f34.jpg

 

 

MaKeT GR (37).jpg

 

 

Modifié (le) par Krl
  • J'aime 5
  • Wow 3
Posté(e)

@Krl quelle est la finalité du projet ? (je ne l'ai pas vue en remontant sur le topic)

C'est une maquette que l'on t'a commandé ? c'est en prévision de la construction d'un quartier ?

Posté(e)
il y a 10 minutes, Jeff78s a dit :

@Krl quelle est la finalité du projet ? (je ne l'ai pas vue en remontant sur le topic)

C'est une maquette que l'on t'a commandé ? c'est en prévision de la construction d'un quartier ?

Oui c'est une commande de Promoteur pour un futur quartier

  • J'aime 1
  • Merci ! 1

Créer un compte ou se connecter pour commenter

Vous devez être membre afin de pouvoir déposer un commentaire

Créer un compte

Créez un compte sur notre communauté. C’est facile !

Créer un nouveau compte

Se connecter

Vous avez déjà un compte ? Connectez-vous ici.

Connectez-vous maintenant
  • Sur cette page :   0 membre est en ligne

    • Aucun utilisateur enregistré regarde cette page.
  • YouTube / Les Imprimantes 3D .fr

×
×
  • Créer...