jpeg Posté(e) Janvier 28, 2023 Auteur Posté(e) Janvier 28, 2023 En fait c'est le nouvel an chinois et contrairement à leur habitude, ils ne sont pas très opérationnels. Comme en plus je ne les sens pas coté tarif et port avec le peu d'échanges réalisés, j'en profite pour voir ce qui se fait coté concurrents. La Energetic était normalement avant rupture à 95€ en promo sans frais de port au lieu de 143€ (et on me parle également de port en sus) quand la Primacreator est à 120€ sans port. Voilà la raison de ma question. S'ils me font le prix avant rupture, je n'hésite pas.
jpeg Posté(e) Janvier 30, 2023 Auteur Posté(e) Janvier 30, 2023 Je le sentais venir : la Energétic est passée de 95€ à 174€ !!! Après le nouvel an chinois, c'est ma fête.
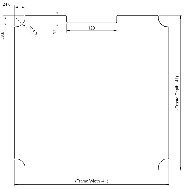
jpeg Posté(e) Février 13, 2023 Auteur Posté(e) Février 13, 2023 Bon, j'ai commencé le montage, mais je n'ai trouvé nulle part dans la doc un plan de découpe du "Deck Panel" (le fond sous le lit chauffant). Si j'ai pu déduire : - les découpes aux angles (15x30) pour le passage de la courroie - le placement de l'encoche au fond , je n'ai pas son gabarit (que j'aimerais au plus juste) ? Idem pour le passage de fils sous le bed ? et surtout si l'écartement des rails din qui supportent la plaque de fond est standardisé ? Idem son placement car dans la mesure du possible, j'envisage de placer un 3ème rail (chute qui me reste) - 3ème rail qui viendra renforcer et permettra le placement d'autres accessoires). Merci pour vos réponses.
methylene67 Posté(e) Février 13, 2023 Posté(e) Février 13, 2023 (modifié) il y a 21 minutes, jpeg a dit : Bon, j'ai commencé le montage, mais je n'ai trouvé nulle part dans la doc un plan de découpe du "Deck Panel" (le fond sous le lit chauffant). Si j'ai pu déduire : - les découpes aux angles (15x30) pour le passage de la courroie - le placement de l'encoche au fond , je n'ai pas son gabarit (que j'aimerais au plus juste) ? Idem pour le passage de fils sous le bed ? et surtout si l'écartement des rails din qui supportent la plaque de fond est standardisé ? Idem son placement car dans la mesure du possible, j'envisage de placer un 3ème rail (chute qui me reste) - 3ème rail qui viendra renforcer et permettra le placement d'autres accessoires). Merci pour vos réponses. https://github.com/VoronDesign/Voron-2/tree/Voron2.4/Drawing_DXFs/Panels Modifié (le) Février 13, 2023 par methylene67
methylene67 Posté(e) Février 13, 2023 Posté(e) Février 13, 2023 à l’instant, jpeg a dit : J'ai honte Tu peux ^^.
Savate Posté(e) Février 13, 2023 Posté(e) Février 13, 2023 il y a 8 minutes, jpeg a dit : J'ai honte il ne faut pas la version avec les trous : Voron-2/Deck_Panel.PDF at Voron2.4 · VoronDesign/Voron-2 (github.com) (il y a aussi un dxf sur Voron-2/Drawing_DXFs/Panels at Voron2.4 · VoronDesign/Voron-2 (github.com))
Morganne46 Posté(e) Février 13, 2023 Posté(e) Février 13, 2023 @Savate Je vois que tu possède 2 Voron 2.4, hum, si tu es disponible, je t'envoie le kit, tu me la monte complète, et, tu me la renvoie, ce sera quand même mieux je pense. 1
methylene67 Posté(e) Février 13, 2023 Posté(e) Février 13, 2023 il y a 4 minutes, Savate a dit : il ne faut pas la version avec les trous : Voron-2/Deck_Panel.PDF at Voron2.4 · VoronDesign/Voron-2 (github.com) (il y a aussi un dxf sur Voron-2/Drawing_DXFs/Panels at Voron2.4 · VoronDesign/Voron-2 (github.com)) Les deux liens pointent sur le même fichier non ?
Savate Posté(e) Février 13, 2023 Posté(e) Février 13, 2023 à l’instant, Morganne46 a dit : je t'envoie le kit, tu me la monte complète, et, tu me la renvoie tu as tort, le montage c'est ce qui est le plus drôle (la partie mécanique n'est pas super complexe et la partie électronique, tu maitrises déjà Klipper, donc ras )
methylene67 Posté(e) Février 13, 2023 Posté(e) Février 13, 2023 (modifié) il y a 3 minutes, Morganne46 a dit : @Savate Je vois que tu possède 2 Voron 2.4, hum, si tu es disponible, je t'envoie le kit, tu me la monte complète, et, tu me la renvoie, ce sera quand même mieux je pense. Et tu perdrais tout le plaisir du montage feignasse ^^ . Modifié (le) Février 13, 2023 par methylene67 2
Savate Posté(e) Février 13, 2023 Posté(e) Février 13, 2023 à l’instant, methylene67 a dit : Les deux liens pointent sur le même fichier non ? non, un sur le pdf du deck panel et l'autre sur le répertoire des DXFs (le même que le tiens c'est vrai )
jpeg Posté(e) Février 13, 2023 Auteur Posté(e) Février 13, 2023 De toute manière j'étais là avant lol
Morganne46 Posté(e) Février 13, 2023 Posté(e) Février 13, 2023 il y a 2 minutes, methylene67 a dit : Et tu perdrais tout le plaisir du montage feignasse ^^ Oui justement je suis une feignasse, c'est pour ça que je demande à Savate de me la monté (sans Klipper) je le ferais ça 2
methylene67 Posté(e) Février 14, 2023 Posté(e) Février 14, 2023 Il y a 18 heures, jpeg a dit : Bon, j'ai commencé le montage, mais je n'ai trouvé nulle part dans la doc Des photos des photos, ça doit être une belle bête ^^.
jpeg Posté(e) Février 14, 2023 Auteur Posté(e) Février 14, 2023 Calme, chaque chose en son temps, d'autant que je n'en suis qu'au début (p47/293) mais c'est vrai que la beste est imposante Promis, je vais déposer ...
jpeg Posté(e) Février 14, 2023 Auteur Posté(e) Février 14, 2023 Un tit aperçu vite fait. J'ai placé quelques visses et un CD pour mieux se rendre compte des volumes. 2
methylene67 Posté(e) Février 14, 2023 Posté(e) Février 14, 2023 (modifié) @jpeg Les profiles 2020 ont l’air vachement fins quand tu vois la taille de la bête ! Modifié (le) Février 14, 2023 par methylene67
Savate Posté(e) Février 15, 2023 Posté(e) Février 15, 2023 Il y a 9 heures, jpeg a dit : Un tit aperçu vite fait. J'ai placé quelques visses et un CD pour mieux se rendre compte des volumes. ça fait bien grand et bien haut comme bestiole tu devrais virer le bed tant que tu n'a pas fini le montage : ça rajoute du poids pour rien et ça rend le retournement pénible
jpeg Posté(e) Février 15, 2023 Auteur Posté(e) Février 15, 2023 Il y a 11 heures, methylene67 a dit : @jpeg Les profiles 2020 ont l’air vachement fins quand tu vois la taille de la bête ! A l'origine je pensais passer en 25x25 mais la complexité des modifications m'a arrêté. Au final, l'ensemble est bien plus rigide que je ne le pensais alors que les parois ne sont pas encore assemblées. Il y a 3 heures, Savate a dit : ça fait bien grand et bien haut comme bestiole tu devrais virer le bed tant que tu n'a pas fini le montage : ça rajoute du poids pour rien et ça rend le retournement pénible Il n'est là que pour la foto mais c'est sur ce n'est pas une bestiole pour gringalet lol Méthylène évoquait précédemment l'éventuelle inutilité du second fond : il aura aussi l'utilité de renforcer la structure. Je pense aussi une fois fini, ajouter un kit de 4 poignées et 2 roues rétractables pour les départs en vacances. 1
Savate Posté(e) Février 15, 2023 Posté(e) Février 15, 2023 il y a 11 minutes, jpeg a dit : il aura aussi l'utilité de renforcer la structure. non, il ne renforce pas grand chose (il est vissé sur des pièces en abs 'souples') et il garde toute l'électronique au chaud. Si vraiment tu veux renforcer la structure des barres de renfort en diagonale sur les côtés et le fond seront beaucoup plus efficaces . il y a 15 minutes, jpeg a dit : Je pense aussi une fois fini, ajouter un kit de 4 poignées et 2 roues rétractables pour les départs en vacances. tu veux en faire une vrouette alors ? 1 1
methylene67 Posté(e) Février 15, 2023 Posté(e) Février 15, 2023 il y a 9 minutes, Savate a dit : tu veux en faire une vrouette alors ? C'est vrai qu'une Voron c'est pratique pour jardiner 1 2
jpeg Posté(e) Février 15, 2023 Auteur Posté(e) Février 15, 2023 Une vrouette avec autant de moteurs, c'est au moins un motoculteur 2 1
jpeg Posté(e) Mars 1, 2023 Auteur Posté(e) Mars 1, 2023 (modifié) Question à 1000€ : L'écartement des 2 profilés 20x20 supportant le bed est préconisé à 75mm de part et d'autre de l'axe de la machine or la résistance chauffante que j'ai est 'prépercée pour laisser passer les fixations et éviter ensuite d'éventuels courts-circuits - je suis donc incité (afin de respecter les prépercages) à avoir un écartement de 170 de part et d'autre de l'axe. L'écartement des rails DIN qui sont fixés dessous est respecté avec 120 d'écarts entr'eux. La modification de 75 à 170 a-t-elle une incidence sur le reste de l'assemblage ? Modifié (le) Mars 1, 2023 par jpeg
methylene67 Posté(e) Mars 1, 2023 Posté(e) Mars 1, 2023 Vu que tu as un plateau plus grand, je pense que c'est même mieux, juste comme dit avant, le nevermore en collera pas. 1
Messages recommandés
Créer un compte ou se connecter pour commenter
Vous devez être membre afin de pouvoir déposer un commentaire
Créer un compte
Créez un compte sur notre communauté. C’est facile !
Créer un nouveau compteSe connecter
Vous avez déjà un compte ? Connectez-vous ici.
Connectez-vous maintenant